0
  • Acheter De l'ancien
  • Louer
Dans un rayon de
Budget
Mini
Maxi

    Faites estimer votre bien par un professionnel

    Estimer votre bien
    8 Pièce(s)
    5 Chambre(s)

    Maison en coeur de ville de Baud

    Baud (56150)
    Réf : 2024-34

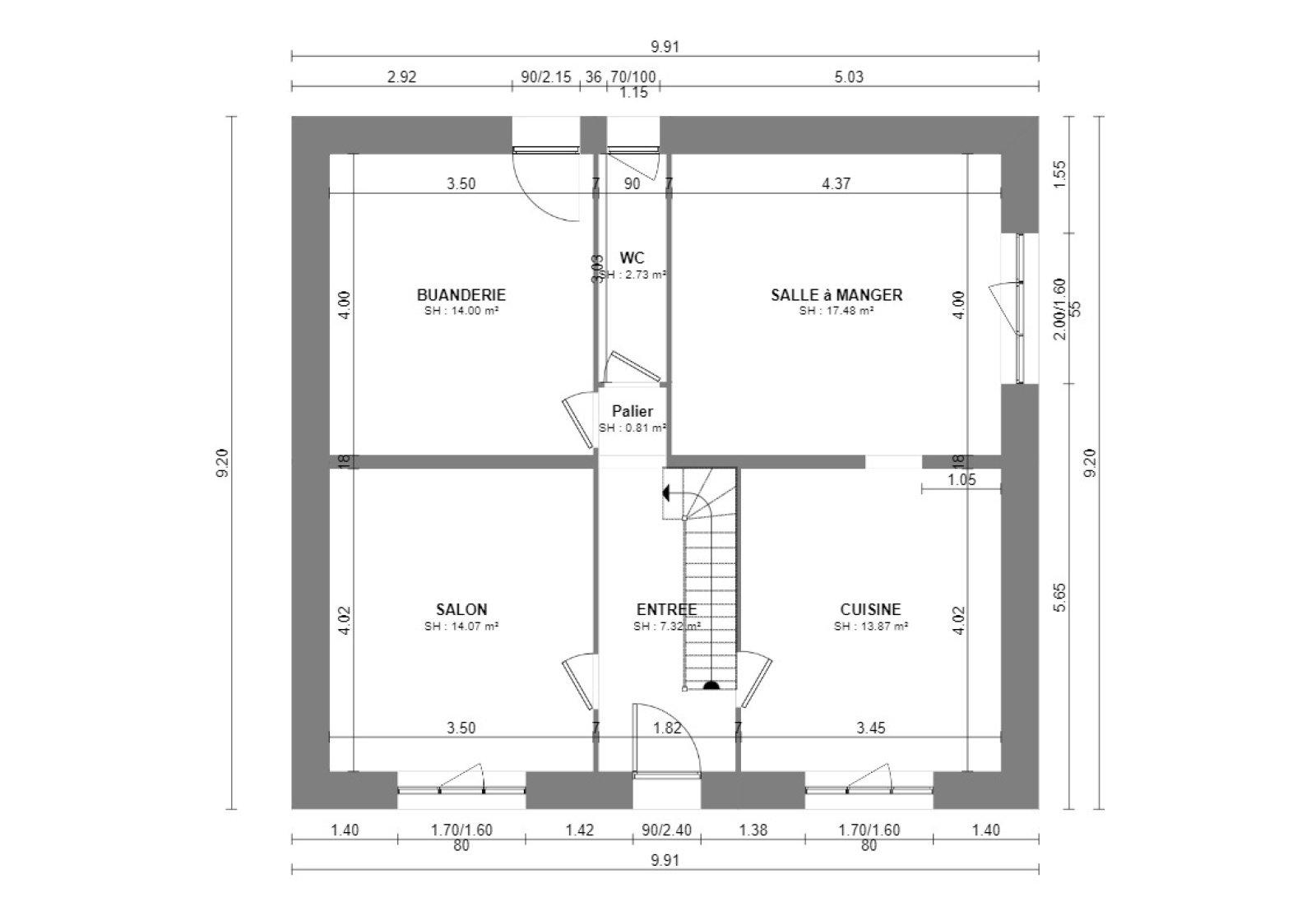
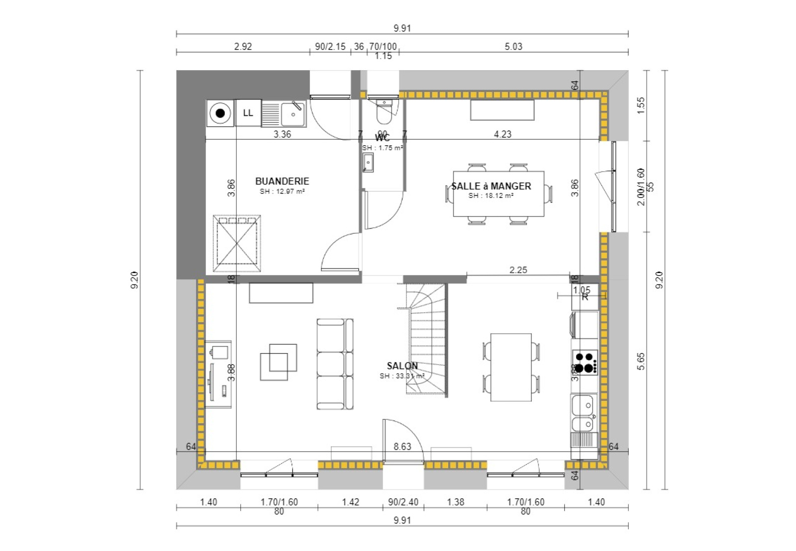
    Maison des années 50 située en bout d'une impasse en centre-ville de Baud. Elle se compose de la façon suivante :


    Au rez-de-chaussée : une entrée desservant une cuisine, un salon, une salle à manger, une pièce pouvant servir de chambre, un coin chaufferie et un WC.

    À l'étage : quatre belles chambres et une salle de bain et un WC.

    Un grenier entièrement aménageable.

    Assainissement collectif.

    Le tout sur un beau terrain de 551 m²

    Offre à saisir

    En Bref

    Code postal 56150
    Surface habitable (m²) 134 m²
    surface terrain 551 m²
    Surface loi Carrez (m²) 134 m²
    Nombre de chambre(s) 5
    Nombre de pièces 8
    Nombre de niveaux 2
    Vue dégagée - sans vis à vis
    Nb de salle d'eau 1
    Cuisine Séparée
    Type de cuisine SEMI-EQUIPEE
    Mode de chauffage Fioul
    Type de chauffage Radiateur
    Format de chauffage Individuel
    Terrasse OUI
    Exposition Sud
    Année de construction 1953
    Terrain piscinable OUI
    Terrain arboré OUI